Wohnen im Klostergarten
Wohneinheiten
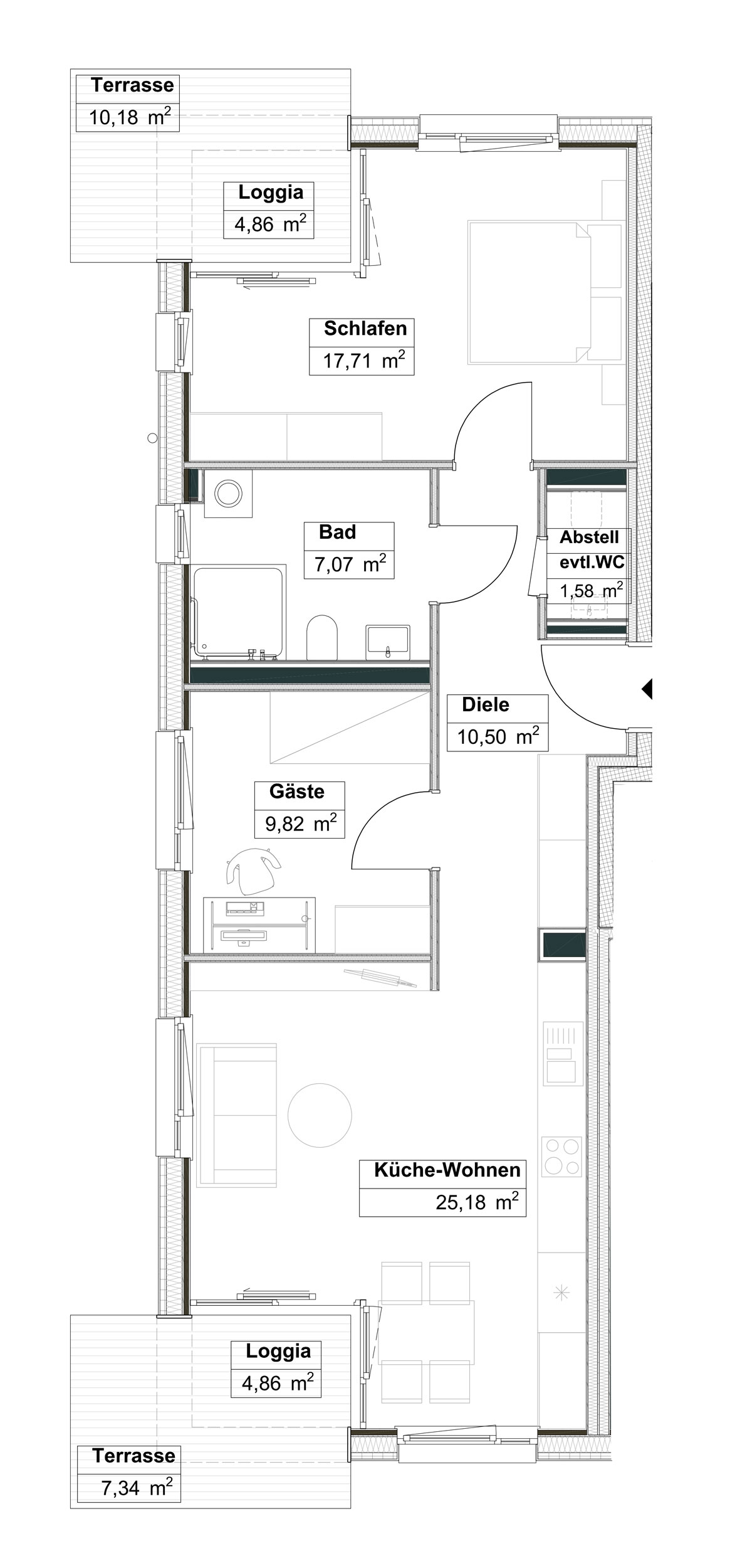
Größe
Zimmer
Grundstücksfläche
Wohnfläche
Zimmer
Nachhaltiges Wohnquartier – ganzheitlich gedacht, im Grünen und doch zentral.
Wohnen im Klostergarten verbindet modernes Mehrgenerationenwohnen mit einem ganzheitlichen Nachhaltigkeitskonzept. Holz-Hybridbauweise, Photovoltaik und Nahwärmenetz treffen auf großzügige Loggien/Balkone sowie Gartenanteile im Erdgeschoss – in direkter Nähe zur Laupheimer Höhenanlage und fußläufig zur Innenstadt.
Highlights dieses Projekts
- Holz-Hybridbauweise für angenehmes Wohnklima
- Nahwärmenetz mit Erdsonden, Luft als Wärmequelle und zentralen Wärmepumpen
- Photovoltaik auf allen Dächern (Mieterstrom-Modell) + Ökostrom
- Alle Wohnungen mit Balkon/Loggia, EG-Wohnungen zusätzlich mit Gartenanteil
- Große Fahrradgarage ebenerdig + Keller-/Abstellräume
- Service-Wohnen für Senioren sowie Infrastruktur durch „Altwerden im Kloster“ im Quartier
- Zentrale Parklage mit direkter Anbindung an die Laupheimer Höhenanlage auf historischem Klosterareal
- Hochwertige Ausstattung mit Echtholzparkett, Fußbodenheizung und langlebigen Holz-Alu-Fenstern in allen Wohnungen
- Exklusive quartierseigene Infrastruktur mit Restaurant und Café, Wellnessbereich sowie Carsharing-Angebot
Kategorie

Grundstücksfläche

Projektadresse


Baustart

Baustart

Fertigstellung

Einheiten in diesem Projekt
Noch ? von ? Einheiten verfügbar
Wie viel Wohnfläche hätten Sie gerne?
Was soll es denn sein?


Zentral im Grünen
Das Quartier „Wohnen im Klostergarten“ besticht durch seine exklusive Lage direkt im Grünen und zugleich mitten in der Stadt. Auf dem geschichtsträchtigen Areal des ehemaligen Dreifaltigkeitsklosters entstanden, bietet das Wohngebiet eine ruhige, naturnahe Atmosphäre mit parkähnlichen Außenanlagen, die unmittelbar an die Laupheimer Höhenanlage angrenzen. Dieser weitläufige Park ermöglicht es Bewohnern jeden Alters, direkt vor der eigenen Haustür spazieren zu gehen, sich sportlich zu betätigen oder die Natur zu genießen, ohne eine Straße überqueren zu müssen.
Trotz der idyllischen Einbettung in die Natur ist das lebendige Stadtzentrum von Laupheim mit seinen vielfältigen kulturellen Angeboten, Märkten und Festen nur rund 900 Meter entfernt. Sämtliche Einrichtungen des täglichen Bedarfs, wie Einkaufsmöglichkeiten, Bäckereien, Ärzte sowie Schulen und Kindergärten, sind bequem zu Fuß oder mit dem Rad in wenigen Minuten erreichbar. Durch die ideale Anbindung an die regionale Infrastruktur vereint dieser Standort die Vorzüge einer gewachsenen Stadt mit der hohen Lebensqualität eines modernen, grünen Quartiers.
Lage & Infrastruktur
Zentral-grüne Lage in Laupheim, direkt an die Höhenanlage angrenzend. Innenstadt ca. 900 m entfernt; Schulen, Kindergärten und Einkaufsmöglichkeiten fußläufig erreichbar.


Park
Bäckerei
Supermarkt
Schule
100 m
100 m
400 m
400 m
550 m
550 m
900 m
900 m
Weitere aktuelle Projekte




Fordern Sie
jetzt Ihr Exposé an
Im Exposé erhalten Sie alle wichtigen Informationen zu Ihrer neuen Wohnmöglichkeit. Auf Wunsch vereinbaren wir gerne ein persönliches Beratungsgespräch, um Ihre individuellen Fragen zu klären.
























